location_onBijeljina, 18.01.2026. 13:50
Izdaje se poslovni prostor, koji se dijeli sa postojećom agencijom.
442 Šif. O-16864
- stairs_2 Sprat Prizemlje
- activity_zone Površina 64
Izdaje se poslovni prostor na adresi Majevička 105, Bijeljina, pogodan za kancelarijske i administrativne djelatnosti (advokatska kancelarija, računovodstvo, knjigovodstvo, konsultantske i slične djelatnosti).
Prostor se koristi u saradnji sa postojećom agencijom, ali je praktično u cjelosti na raspolaganju zakupcu, s obzirom na to da se poslovanje agencije gotovo u potpunosti odvija online.
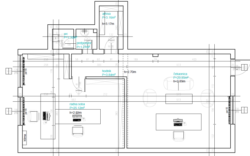
Prostor se sastoji od dvije funkcionalne cjeline ukupne površine oko 55 m²:
• zasebne radne kancelarije površine oko 25 m², fizički odvojene, sa klimom i grijanjem, pogodne za miran i samostalan rad
• ulaznog / prijemnog prostora – čekaonice površine oko 30 m², uredno i reprezentativno opremljene, pogodne za prijem stranaka i poslovne sastanke
Prostor je u potpunosti sređen i opremljen za kancelarijski rad (klima, grijanje, čajna kuhinja, sanitarni čvor, namještaj), te je odmah useljiv.
Mogućnost dogovora oko modela korišćenja prostora u skladu sa djelatnošću zakupca.
Nacrt prostora dostupan radi lakšeg pregleda rasporeda.
Za više informacija, fotografije i dogovor oko obilaska, kontakt: +387 65 179 571 ili +381 61 252 7238
- Ostalo
phone_in_talk +38765179571 +381612527238
Javna pitanja
Morate se prijaviti da bi mogli postaviti pitanje.